Core Dentsu-in Royal is located a 10-minute walk from Korakuen Station on the Tokyo Metro Marunouchi Line and Tokyo Metro Namboku Line.
It also offers convenient access to Kasuga Station on the Toei Mita Line and Toei Oedo Line, and Meiji-dani Station on the Tokyo Metro Marunouchi Line, allowing residents to choose the most convenient route depending on their destination.
Convenient shopping is close at hand with a “Maibasket” supermarket and a “7-Eleven” convenience store located nearby.
Elementary and junior high schools are all within a 10-minute walk, and the Haramizaka Cherry Blossom Avenue is just an 8-minute walk (650m) away, offering a pleasant stroll under the cherry blossoms.
This area combines proximity to the city center with tranquility and everyday convenience.
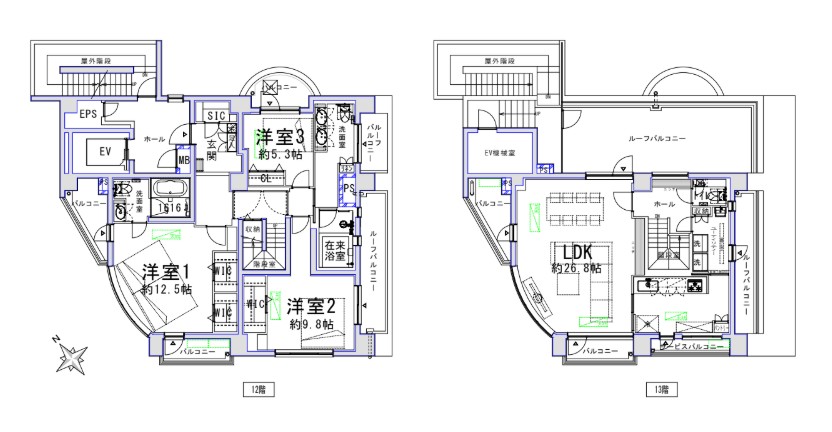
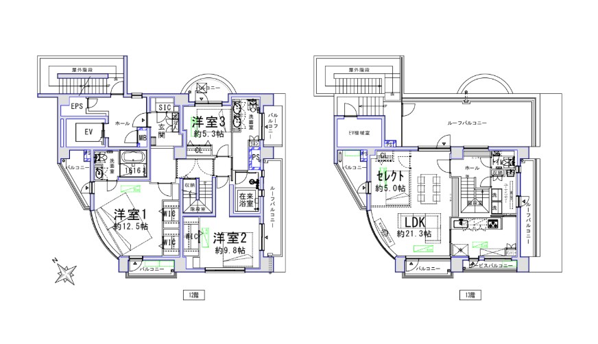
The exclusive area is 155.49㎡, with a balcony area of 20.13㎡. It features a living-dining-kitchen area of approximately 48.8㎡, plus Western-style rooms of approximately 22.8 ㎡, 17.8 ㎡, and 9.6㎡, each with a walk-in closet. There is ample space for wet areas, including a 1616-size bathroom, three toilets, and two baths. This top-floor corner unit faces southwest, ensuring excellent sunlight exposure.
The flooring and fixtures utilize the Log Mansion’s signature natural solid wood, prized for its pleasant texture. All existing interior finishes were completely demolished and rebuilt from the piping up, delivering a living experience akin to a brand-new home.
The building features white-toned tiled exterior walls, creating a calm and elegant atmosphere. It is equipped with an automatic lock system, ensuring peace of mind regarding security.
Although renovation work is currently underway, we are happy to show you the property! ♪
■ Full-scale renovation underway (including plumbing work)
■ Prime location with access to 4 train lines and 3 stations
■ Corner unit facing four directions, ensuring excellent sunlight and ventilation
■ Top-floor unit spanning two floors (maisonette style)
■ Spacious 26.8-tatami-mat living-dining-kitchen area
■ 2 bathrooms and 3 toilets
■ New ceiling-mounted air conditioning units installed in every room. Unit includes a rooftop balcony
■ After-sales service with a warranty of up to 10 years
| Price | 279,900,000 JPY (tax included) | |||
|---|---|---|---|---|
| Location | Kasuga Bunkyo-ku, Tokyo | |||
| Transportation |
Tokyo Metro Marunouchi Line “Korakuen” Station walk 10 min Toei Mita Line “Kasuga” Station walk 12 min Tokyo Metro Marunouchi Line “Myogadani” Station walk 14 min |
|||
| Exclusive Area | 155.49m² | Layout | 4LDK | |
| Layout | 4LDK | |||
| Balcony | 20.13m² | Year Built | September 1989 | |
| Year Built | September 1989 | |||
|
|
||||
|
The unit can be changed from a 3LDK to a 4LDK. |
|
Exclusive area: 155.49 sq.m. LDK: 48.8 sq.m. Western-style rooms: 22.8 sq.m., 17.8 sq.m., and 9.6 sq.m. High storage capacity is also noteworthy. Top floor, single unit spanning 2 floors, maisonette-style residence. |
The unit can be changed from a 3LDK to a 4LDK. |
Nearest Stations: Korakuen Station, Kasuga Station, Myogadani Station
Local Amenities:
Maibasket Kasuga 2-chome Store…approx. 124 m
7-Eleven Bunkyo Koishikawa 4-chome Store…approx. 76 m
Drug Papas Koishikawa 1-chome Store…approx. 778 m
Koishikawa Post Office…approx. 411 m
Kanetomi Elementary School…approx. 429 m
Myoga Junior High School…514m
The solid wood used in the interior is a natural material crafted from a single piece of timber cut from a tree. This property features a high-end design that makes extensive use of solid wood—typically found in custom-built homes—combined with a well-thought-out, highly functional floor plan designed to complement it.
To offer design and functionality that surpass even new construction, along with a reliable warranty and your ideal living space, we are committed to creating designs, floor plans, and specifications that ensure you can live here with peace of mind for years to come.
The natural solid wood used in the interior, which significantly reduces the use of chemical substances, is not only gentle on young children and allergy sufferers but also offers a design that allows you to enjoy the beauty of aging over time.
“A comfortable home filled with warmth, both now and in the future, where you can feel the soft texture of wood”—that is the vision of Log Mansion.
By visiting the site, you can experience the high quality of the renovation, the surrounding environment, and the atmosphere of the building for yourself.
We’ll be happy to show you around the unit while reviewing the detailed renovation materials with you.
Exclusive area: 155.49 sq.m. LDK: 48.8 sq.m. Western-style rooms: 22.8 sq.m., 17.8 sq.m., and 9.6 sq.m. High storage capacity is also noteworthy. Top floor, single unit spanning 2 floors, maisonette-style residence.